A koncepcióterv keretében két lehetőséget vizsgáltunk meg: hogyan tudjuk értéknövelés mellett megőrizni az épület jelenlegi formáját, és funkcióját. Azaz egy olyan szociális lakóházat építeni, aminek szuterén szintje alkalmas lehet közösségi funkciókra (közösségi nappali, konyha, mosoda, gyermek megőrző, alkotótér, műhely stb.); a tetőterébe pedig galériázott fecskelakásokat terveztünk fiatal párok számára. Ezzel az épület alsó éás felső szintje bekapcsolódna a ház és tágabban a kerület vérkeringésébe.
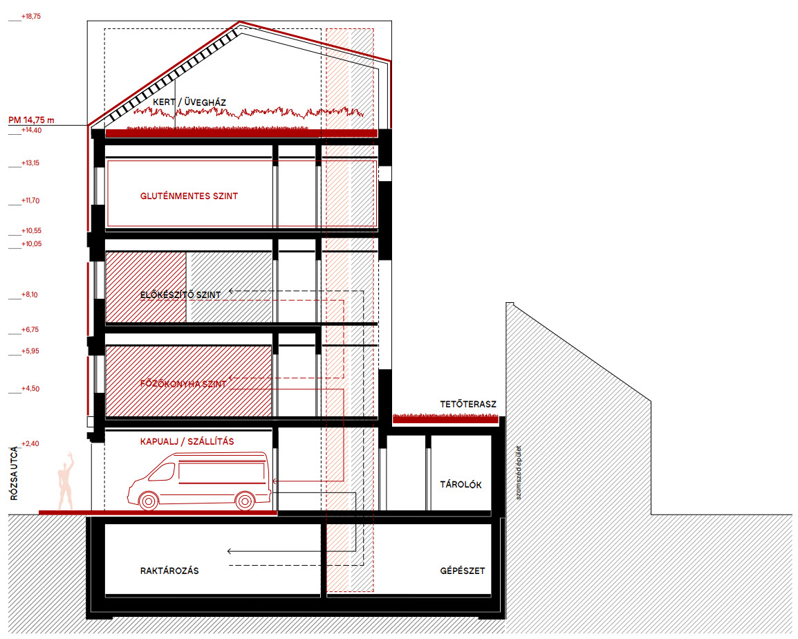
A másik felvetés a megrendelőtől érkezett, mely szerint egy 900+ adagos, gluténmentes szekcióval rendelkező konyhát szeretnének kiépíteni a kerület szociális intézményei számára. Ez a verzió csakis az épület bontásával lehetséges, hiszen a meglévő ház szerkezetileg és elosztásában is alkalmatlan főzőkonyhának. Ebben a verzióban kihasználtuk a rendelkezésre álló szintterületi tartalékokat és egy olyan ház-gép jött létre, melynek szintjei a főzés különböző fázisait szolgálják, míg a tetőtéren egy konyhakertben fűszerek nőnek, érik a kovászos uborka és a felgyűjtött esővizet a növények isszák fel.

Mindkét koncepció esetén figyeltünk a fenntartható, körforgásos működésre, és a hosszútávon megtérülő befektetési megoldásokra, hiszen az itt létesülő új funkció vagy akár új épület Terézváros működésének kiegészítője.